make-sure-about-company-img
Фахверк со скатной кровлей
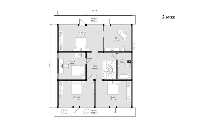
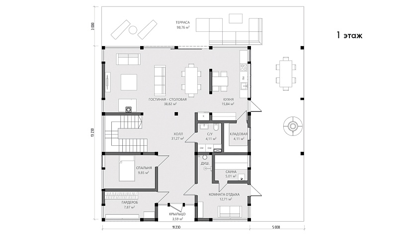
Проект Хольцгау
Проект Хольцгау
Минимальная цена
22,3 млн.руб.
Общая площадь
261 м2
Жилая площадь
190 м2
этажей
2
спален
4
санузлов
3
особенности
Камин
Серийные дома
Балкон
комплектация

Базовая комплектация

  • Разработка проектной документации
    — Схема размещения дома на участке;
    — План фундамента;
    — Планы этажей с расстановкой мебели;
    — Привязки сантехнических приборов;
    — План стропильной системы и план кровли;
    — Ведомость перекрытий;
    — Узлы монтажа безрамного остекления;
    — Аксонометрическая модель дома;
    — Визуализации;
    — Расчет статических нагрузок.
  • Стройплощадка
    — Стройгородок для проживания рабочих;
    — Видеонаблюдение;
    — Подъездные пути;
    — Организация временного забора.
  • Фундамент
    — Геодезические работы;
    — Техническая документация на фундамент;
    — Обустройство песчаной подушки под плиту с трамбовкой 400 мм;  
    — Выводы канализации Ostendorf;
    — Закладные под коммуникации;
    — Монолитная железобетонная плита 350 мм из бетона марки М350;
    — Арматура 12 мм, вязка и загиб по углам;
    — Виброусадка;
    — Гидроизоляция (гидростеклоизол);
    — Лабораторная экспертиза бетона спустя 28 дней после заливки.
  • Домокомплект
    — Фахверк со стойками 240 x 240 мм;
    — Покраска бруса австрийским маслом Adler;
    — Обработка огнебиозащитным составом стропильной системы, балок перекрытия и всех пиломатериалов;
    — Сборка на скрытую крепежную систему.
  • Внешние стены
    — Обрешетка;
    — Пароизоляция ProClima;
    — Каркас из сухой строганной доски;
    — Натуральный древесный утеплитель;
    — МДВП.
  • Межэтажные перекрытия
    — Клееные балки перекрытия;
    — Огнестойкие шумопоглощающие плиты GreenBoard;
    — Клееные балки балконов (при их наличии в проекте).
  • Остекление
    — Панорамное остекление. Двухкамерные стеклопакеты на основе премиальной линейки стекол с магнетронным напылением LartaPro HP, металлопластиковая дистанционная рамка, заполнение камер аргоном;
    — Установка стеклопакетов в паз и монтаж капельников и отливов;
    — Открывные оконные системы и балконные двери в деревянных рамах;
    — Раздвижной портал HS Patio Life для выхода на террасу.
  • Кровля
    — Клееная стропильная система 90 х 250 мм;
    — Пароизоляция ProClima;
    — Мягкая древесно-волокнистая плита, древесный утеплитель;
    — Финишное кровельное покрытие (мягкая черепица, двойной стоячий фальц, цементно-песчаная черепица, керамическая черепица)
  • Финишная отделка фасадов в соответствии с проектом
    — Фиброцементные панели, планкен, фальц, керамогранит, силиконовая паропроницаемая штукатурка.  
  • Другие работы
    — Временные входные двери;
    — Временная лестница (если дом имеет более одного этажа);
    — Отбойник дождевой воды.
  • Проект Хольцгау
    Проект Хольцгау
    Проект Хольцгау
    Проект Хольцгау
    Проект Хольцгау
    Проект Хольцгау
    Проект Хольцгау
    Проект Хольцгау
    Проект Хольцгау
    Проект Хольцгау
    Проект Хольцгау
    Проект Хольцгау
    Проект Хольцгау
    Проект Хольцгау
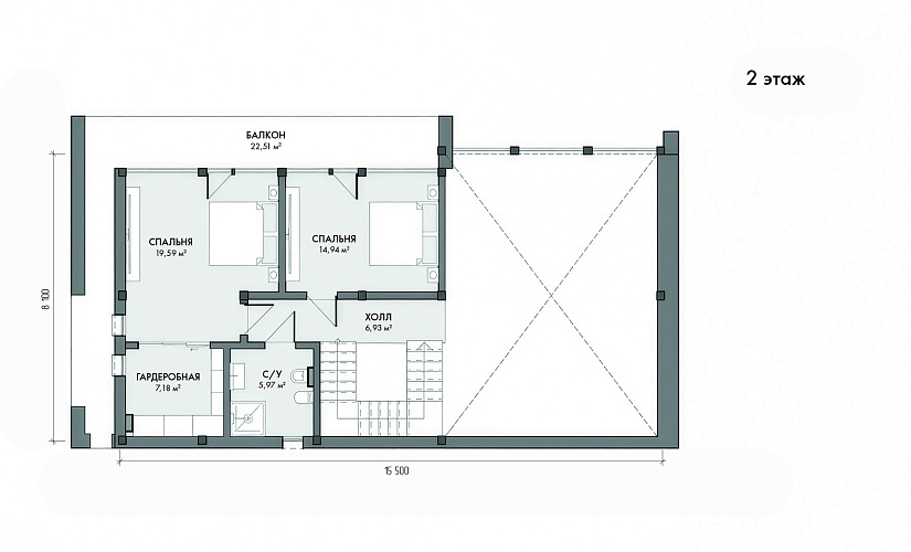
    Проект Мюнхен
    Проект Мюнхен
    Минимальная цена
    29,2 млн.руб.
    Общая площадь
    351 м2
    Жилая площадь
    226 м2
    этажей
    2
    спален
    4
    санузлов
    2
    особенности
    Второй свет
    Спортзал
    Серийные дома
    Крытая веранда
    Балкон
    Терраса
    комплектация

    Базовая комплектация

  • Разработка проектной документации
    — Схема размещения дома на участке;
    — План фундамента;
    — Планы этажей с расстановкой мебели;
    — Привязки сантехнических приборов;
    — План стропильной системы и план кровли;
    — Ведомость перекрытий;
    — Узлы монтажа безрамного остекления;
    — Аксонометрическая модель дома;
    — Визуализации;
    — Расчет статических нагрузок.
  • Стройплощадка
    — Стройгородок для проживания рабочих;
    — Видеонаблюдение;
    — Подъездные пути;
    — Организация временного забора.
  • Фундамент
    — Геодезические работы;
    — Техническая документация на фундамент;
    — Обустройство песчаной подушки под плиту с трамбовкой 400 мм;  
    — Выводы канализации Ostendorf;
    — Закладные под коммуникации;
    — Монолитная железобетонная плита 350 мм из бетона марки М350;
    — Арматура 12 мм, вязка и загиб по углам;
    — Виброусадка;
    — Гидроизоляция (гидростеклоизол);
    — Лабораторная экспертиза бетона спустя 28 дней после заливки.
  • Домокомплект
    — Фахверк со стойками 240 x 240 мм;
    — Покраска бруса австрийским маслом Adler;
    — Обработка огнебиозащитным составом стропильной системы, балок перекрытия и всех пиломатериалов;
    — Сборка на скрытую крепежную систему.
  • Внешние стены
    — Обрешетка;
    — Пароизоляция ProClima;
    — Каркас из сухой строганной доски;
    — Натуральный древесный утеплитель;
    — МДВП.
  • Межэтажные перекрытия
    — Клееные балки перекрытия;
    — Огнестойкие шумопоглощающие плиты GreenBoard;
    — Клееные балки балконов (при их наличии в проекте).
  • Остекление
    — Панорамное остекление. Двухкамерные стеклопакеты на основе премиальной линейки стекол с магнетронным напылением LartaPro HP, металлопластиковая дистанционная рамка, заполнение камер аргоном;
    — Установка стеклопакетов в паз и монтаж капельников и отливов;
    — Открывные оконные системы и балконные двери в деревянных рамах;
    — Раздвижной портал HS Patio Life для выхода на террасу.
  • Кровля
    — Клееная стропильная система 90 х 250 мм;
    — Пароизоляция ProClima;
    — Мягкая древесно-волокнистая плита, древесный утеплитель;
    — Финишное кровельное покрытие (мягкая черепица, двойной стоячий фальц, цементно-песчаная черепица, керамическая черепица)
  • Финишная отделка фасадов в соответствии с проектом
    — Фиброцементные панели, планкен, фальц, керамогранит, силиконовая паропроницаемая штукатурка.  
  • Другие работы
    — Временные входные двери;
    — Временная лестница (если дом имеет более одного этажа);
    — Отбойник дождевой воды.
  • Проект Мюнхен
    Проект Мюнхен
    Проект Мюнхен
    Проект Мюнхен
    Проект Мюнхен
    Проект Мюнхен
    Проект Мюнхен
    Проект Мюнхен
    Проект Мюнхен
    Проект Мюнхен
    Проект Мюнхен
    Проект Мюнхен
    Проект Мюнхен
    Проект Мюнхен
    Проект Мюнхен
    Проект Мюнхен
    Проект Мюнхен
    Проект Мюнхен
    Проект Мюнхен
    Проект Мюнхен
    Проект Мюнхен
    Проект Мюнхен
    Проект Мюнхен
    Проект Мюнхен
    Проект Мюнхен
    Проект Мюнхен
    Проект Мюнхен
    Проект Мюнхен
    Проект Мюнхен
    Проект Мюнхен
    Проект Мюнхен
    Проект Мюнхен
    Проект Мюнхен
    Проект Мюнхен
    Проект Мюнхен
    Проект Мюнхен
    Проект Мюнхен
    Проект Метц
    Проект Метц
    Минимальная цена
    23,9 млн.руб.
    Общая площадь
    303 м2
    Жилая площадь
    215 м2
    этажей
    2
    спален
    5
    санузлов
    3
    особенности
    Серийные дома
    Балкон
    комплектация

    Базовая комплектация

  • Разработка проектной документации
    — Схема размещения дома на участке;
    — План фундамента;
    — Планы этажей с расстановкой мебели;
    — Привязки сантехнических приборов;
    — План стропильной системы и план кровли;
    — Ведомость перекрытий;
    — Узлы монтажа безрамного остекления;
    — Аксонометрическая модель дома;
    — Визуализации;
    — Расчет статических нагрузок.
  • Стройплощадка
    — Стройгородок для проживания рабочих;
    — Видеонаблюдение;
    — Подъездные пути;
    — Организация временного забора.
  • Фундамент
    — Геодезические работы;
    — Техническая документация на фундамент;
    — Обустройство песчаной подушки под плиту с трамбовкой 400 мм;  
    — Выводы канализации Ostendorf;
    — Закладные под коммуникации;
    — Монолитная железобетонная плита 350 мм из бетона марки М350;
    — Арматура 12 мм, вязка и загиб по углам;
    — Виброусадка;
    — Гидроизоляция (гидростеклоизол);
    — Лабораторная экспертиза бетона спустя 28 дней после заливки.
  • Домокомплект
    — Фахверк со стойками 240 x 240 мм;
    — Покраска бруса австрийским маслом Adler;
    — Обработка огнебиозащитным составом стропильной системы, балок перекрытия и всех пиломатериалов;
    — Сборка на скрытую крепежную систему.
  • Внешние стены
    — Обрешетка;
    — Пароизоляция ProClima;
    — Каркас из сухой строганной доски;
    — Натуральный древесный утеплитель;
    — МДВП.
  • Межэтажные перекрытия
    — Клееные балки перекрытия;
    — Огнестойкие шумопоглощающие плиты GreenBoard;
    — Клееные балки балконов (при их наличии в проекте).
  • Остекление
    — Панорамное остекление. Двухкамерные стеклопакеты на основе премиальной линейки стекол с магнетронным напылением LartaPro HP, металлопластиковая дистанционная рамка, заполнение камер аргоном;
    — Установка стеклопакетов в паз и монтаж капельников и отливов;
    — Открывные оконные системы и балконные двери в деревянных рамах;
    — Раздвижной портал HS Patio Life для выхода на террасу.
  • Кровля
    — Клееная стропильная система 90 х 250 мм;
    — Пароизоляция ProClima;
    — Мягкая древесно-волокнистая плита, древесный утеплитель;
    — Финишное кровельное покрытие (мягкая черепица, двойной стоячий фальц, цементно-песчаная черепица, керамическая черепица)
  • Финишная отделка фасадов в соответствии с проектом
    — Фиброцементные панели, планкен, фальц, керамогранит, силиконовая паропроницаемая штукатурка.  
  • Другие работы
    — Временные входные двери;
    — Временная лестница (если дом имеет более одного этажа);
    — Отбойник дождевой воды.
  • Проект Метц
    Проект Метц
    Проект Метц
    Проект Метц
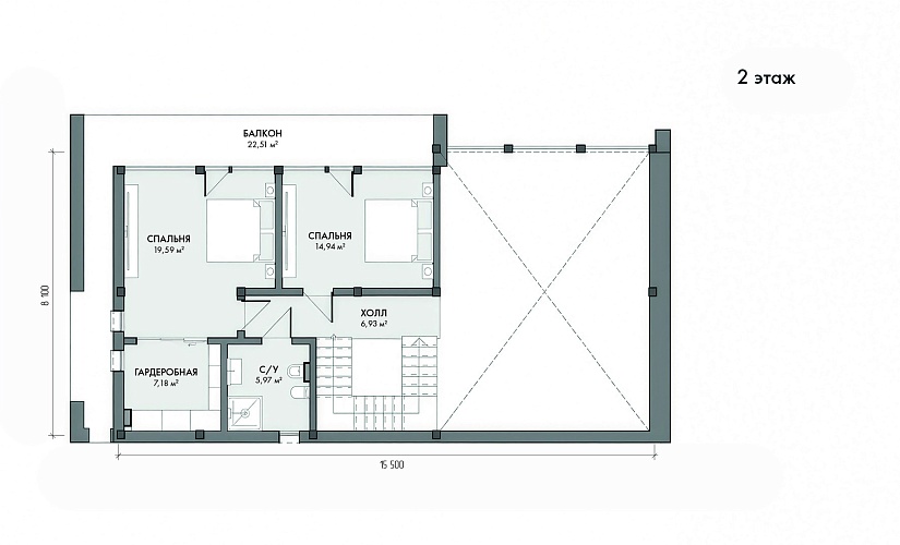
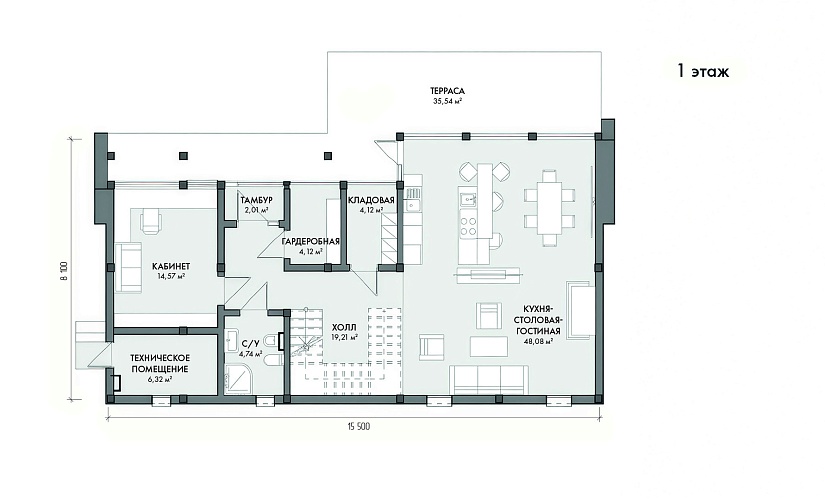
    Проект Вальдорф
    Проект Вальдорф
    Минимальная цена
    29,4 млн.руб.
    Общая площадь
    364 м2
    Жилая площадь
    238 м2
    этажей
    2
    спален
    4
    санузлов
    3
    особенности
    Второй свет
    Серийные дома
    Сауна/Хаммам
    Камин
    Крытая веранда
    Терраса
    Балкон
    комплектация

    Базовая комплектация

  • Разработка проектной документации
    — Схема размещения дома на участке;
    — План фундамента;
    — Планы этажей с расстановкой мебели;
    — Привязки сантехнических приборов;
    — План стропильной системы и план кровли;
    — Ведомость перекрытий;
    — Узлы монтажа безрамного остекления;
    — Аксонометрическая модель дома;
    — Визуализации;
    — Расчет статических нагрузок.
  • Стройплощадка
    — Стройгородок для проживания рабочих;
    — Видеонаблюдение;
    — Подъездные пути;
    — Организация временного забора.
  • Фундамент
    — Геодезические работы;
    — Техническая документация на фундамент;
    — Обустройство песчаной подушки под плиту с трамбовкой 400 мм;  
    — Выводы канализации Ostendorf;
    — Закладные под коммуникации;
    — Монолитная железобетонная плита 350 мм из бетона марки М350;
    — Арматура 12 мм, вязка и загиб по углам;
    — Виброусадка;
    — Гидроизоляция (гидростеклоизол);
    — Лабораторная экспертиза бетона спустя 28 дней после заливки.
  • Домокомплект
    — Фахверк со стойками 240 x 240 мм;
    — Покраска бруса австрийским маслом Adler;
    — Обработка огнебиозащитным составом стропильной системы, балок перекрытия и всех пиломатериалов;
    — Сборка на скрытую крепежную систему.
  • Внешние стены
    — Обрешетка;
    — Пароизоляция ProClima;
    — Каркас из сухой строганной доски;
    — Натуральный древесный утеплитель;
    — МДВП.
  • Межэтажные перекрытия
    — Клееные балки перекрытия;
    — Огнестойкие шумопоглощающие плиты GreenBoard;
    — Клееные балки балконов (при их наличии в проекте).
  • Остекление
    — Панорамное остекление. Двухкамерные стеклопакеты на основе премиальной линейки стекол с магнетронным напылением LartaPro HP, металлопластиковая дистанционная рамка, заполнение камер аргоном;
    — Установка стеклопакетов в паз и монтаж капельников и отливов;
    — Открывные оконные системы и балконные двери в деревянных рамах;
    — Раздвижной портал HS Patio Life для выхода на террасу.
  • Кровля
    — Клееная стропильная система 90 х 250 мм;
    — Пароизоляция ProClima;
    — Мягкая древесно-волокнистая плита, древесный утеплитель;
    — Финишное кровельное покрытие (мягкая черепица, двойной стоячий фальц, цементно-песчаная черепица, керамическая черепица)
  • Финишная отделка фасадов в соответствии с проектом
    — Фиброцементные панели, планкен, фальц, керамогранит, силиконовая паропроницаемая штукатурка.  
  • Другие работы
    — Временные входные двери;
    — Временная лестница (если дом имеет более одного этажа);
    — Отбойник дождевой воды.
  • Проект Вальдорф
    Проект Вальдорф
    Проект Вальдорф
    Проект Вальдорф
    Проект Вальдорф
    Проект Вальдорф
    Проект Вальдорф
    Проект Вальдорф
    Проект Вальдорф
    Проект Вальдорф
    Проект Вальдорф
    Проект Вальдорф
    Проект Вальдорф
    Проект Вальдорф
    Проект Вальдорф
    Проект Вальдорф
    Проект Вальдорф
    Проект Вальдорф
    Проект Вальдорф
    Проект Вальдорф
    Проект Вальдорф
    Проект Вальдорф
    Проект Вальдорф
    Проект Вальдорф
    Проект Вальдорф
    Проект Вальдорф
    Проект Вальдорф
    Проект Вальдорф
    Фахверк с плоской кровлей
    Проект Лихтенштейн
    Проект Лихтенштейн
    Минимальная цена
    34,2 млн.руб.
    Общая площадь
    227 м2
    Жилая площадь
    192 м2
    этажей
    2
    спален
    3
    санузлов
    2
    особенности
    Серийные дома
    Второй свет
    Камин
    Плоская кровля
    Балкон
    комплектация

    Базовая комплектация

  • Разработка проектной документации
    — Схема размещения дома на участке;
    — План фундамента;
    — Планы этажей с расстановкой мебели;
    — Привязки сантехнических приборов;
    — План стропильной системы и план кровли;
    — Ведомость перекрытий;
    — Узлы монтажа безрамного остекления;
    — Аксонометрическая модель дома;
    — Визуализации;
    — Расчет статических нагрузок.
  • Стройплощадка
    — Стройгородок для проживания рабочих;
    — Видеонаблюдение;
    — Подъездные пути;
    — Организация временного забора.
  • Фундамент
    — Геодезические работы;
    — Техническая документация на фундамент;
    — Обустройство песчаной подушки под плиту с трамбовкой 400 мм;  
    — Выводы канализации Ostendorf;
    — Закладные под коммуникации;
    — Монолитная железобетонная плита 350 мм из бетона марки М350;
    — Арматура 12 мм, вязка и загиб по углам;
    — Виброусадка;
    — Гидроизоляция (гидростеклоизол);
    — Лабораторная экспертиза бетона спустя 28 дней после заливки.
  • Домокомплект
    — Фахверк со стойками 240 x 240 мм;
    — Покраска бруса австрийским маслом Adler;
    — Обработка огнебиозащитным составом стропильной системы, балок перекрытия и всех пиломатериалов;
    — Сборка на скрытую крепежную систему.
  • Внешние стены
    — Обрешетка;
    — Пароизоляция pro clima;
    — Каркас из сухой строганной доски;
    — Натуральный древесный утеплитель;
    — МДВП
  • Межэтажные перекрытия
    — Клееные балки перекрытия;
    — Огнестойкие шумопоглощающие плиты GreenBoard;
    — Клееные балки балконов (при их наличии в проекте).
  • Остекление
    — Панорамное остекление. Двухкамерные стеклопакеты на основе премиальной линейки стекол с магнетронным напылением LartaPro HP, металлопластиковая дистанционная рамка, заполнение камер аргоном;
    — Установка стеклопакетов в паз и монтаж капельников и отливов;
    — Открывные оконные системы и балконные двери в деревянных рамах;
    — Раздвижной портал HS Patio Life для выхода на террасу.
  • Кровля
    — Интеллектуальная пароизоляционная мембрана;
    — Клееная стропильная система 90х250 мм;
    — Древесный утеплитель;
    — Тепло- и звукоизоляционная МДВП-плита;
    — Плита OSB 18 мм;
    — ПВХ-мембрана Sikaplan 2 мм.  
  • Финишная отделка фасадов в соответствии с проектом
    — Фиброцементные панели, планкен, фальц, керамогранит, силиконовая паропроницаемая штукатурка.  
  • Другие работы
    — Временные входные двери;
    — Временная лестница (если дом имеет более одного этажа);
    — Отбойник дождевой воды.
  • Проект Лихтенштейн
    Проект Лихтенштейн
    Проект Лихтенштейн
    Проект Лихтенштейн
    Проект Лихтенштейн
    Проект Лихтенштейн
    Проект Лихтенштейн
    Проект Лихтенштейн
    Проект Лихтенштейн
    Проект Лихтенштейн
    Проект Лихтенштейн
    Проект Лихтенштейн
    Проект Лихтенштейн
    Проект Лихтенштейн
    Проект Штутгарт
    Проект Штутгарт
    Минимальная цена
    24,4 млн.руб.
    Общая площадь
    216 м2
    Жилая площадь
    158 м2
    этажей
    2
    спален
    3
    санузлов
    2
    особенности
    Серийные дома
    Второй свет
    Плоская кровля
    Балкон
    Терраса
    Камин
    комплектация

    Базовая комплектация

  • Разработка проектной документации
    — Схема размещения дома на участке;
    — План фундамента;
    — Планы этажей с расстановкой мебели;
    — Привязки сантехнических приборов;
    — План стропильной системы и план кровли;
    — Ведомость перекрытий;
    — Узлы монтажа безрамного остекления;
    — Аксонометрическая модель дома;
    — Визуализации;
    — Расчет статических нагрузок.
  • Фундамент
    — Геодезические работы;
    — Техническая документация на фундамент;
    — Обустройство песчаной подушки под плиту с трамбовкой 400 мм;  
    — Выводы канализации Ostendorf;
    — Закладные под коммуникации;
    — Монолитная железобетонная плита 350 мм из бетона марки М350;
    — Арматура 12 мм, вязка и загиб по углам;
    — Виброусадка;
    — Гидроизоляция (гидростеклоизол);
    — Лабораторная экспертиза бетона спустя 28 дней после заливки.
  • Домокомплект
    — Фахверк со стойками 240 x 240 мм;
    — Покраска бруса австрийским маслом Adler;
    — Обработка огнебиозащитным составом стропильной системы, балок перекрытия и всех пиломатериалов;
    — Сборка на скрытую крепежную систему.
  • Кровля
    — Интеллектуальная пароизоляционная мембрана;
    — Клееная стропильная система 90х250 мм;
    — Древесный утеплитель;
    — Тепло- и звукоизоляционная МДВП-плита;
    — Плита OSB 18 мм;
    — ПВХ-мембрана Sikaplan 2 мм.  
  • Внешние стены
    — Обрешетка;
    — Пароизоляция pro clima;
    — Каркас из сухой строганной доски;
    — Натуральный древесный утеплитель;
    — МДВП
  • Остекление
    — Панорамное остекление. Двухкамерные стеклопакеты на основе премиальной линейки стекол с магнетронным напылением LartaPro HP, металлопластиковая дистанционная рамка, заполнение камер аргоном;
    — Установка стеклопакетов в паз и монтаж капельников и отливов;
    — Открывные оконные системы и балконные двери в деревянных рамах;
    — Раздвижной портал HS Patio Life для выхода на террасу.
  • Межэтажные перекрытия
    — Клееные балки перекрытия;
    — Огнестойкие шумопоглощающие плиты GreenBoard;
    — Клееные балки балконов (при их наличии в проекте).
  • Проект Штутгарт
    Проект Штутгарт
    Проект Штутгарт
    Проект Штутгарт
    Проект Штутгарт
    Проект Штутгарт
    Проект Штутгарт
    Проект Штутгарт
    Проект Штутгарт
    Проект Штутгарт
    Проект Штутгарт
    Проект Штутгарт
    Проект Штутгарт
    Проект Штутгарт
    Проект Штутгарт
    Проект Штутгарт
    Проект Mini дом
    Проект Mini дом
    Минимальная цена
    2,7 млн.руб.
    Общая площадь
    30,55 м2
    Жилая площадь
    14,8 м2
    этажей
    1
    спален
    1
    санузлов
    1
    особенности
    Серийные дома
    Плоская кровля
    Помещение персонала
    комплектация

    Базовая комплектация

  • Фундамент
    — Монолитная железобетонная плита 350 мм из бетона М350.
    — Усиленная песчаная подушка с профессиональной трамбовкой.
    — Арматура стальная по ГОСТу 12 мм, усиленная вязка и угловое армирование.
    — Лабораторная проверка прочности бетона на 28-й день.

    Гарантия устойчивости к нагрузкам и долговечности дома.

  • Фахверк комплект
    — Клееная конструкционная балка (стойки 240×240 мм).
    — Защита бруса австрийским маслом Adler / Osmo.
    — Скрытая крепёжная система — идеальная чистота линий.

    Долговечная и эстетичная конструкция.

  • Внешние стены
    — Каркас из сухой строганной доски / алюминиевый каркас по технологии Knauf
    — Немецкая пароизоляция pro clima.
    — Натуральный древесный утеплитель и мягкая древесно-волокнистая плита. Надёжно устраняет мостики холода и поддерживает комфортный микроклимат круглый год.
    — Финишная отделка фасадов в соответствии с проектом.

    Экологичные материалы для здоровья вашей семьи.

  • Остекление
    — Панорамные двухкамерные стеклопакеты премиум-класса LartaPro HP. С возможностью выбора степени затемнения и оттенка — подберите идеальное светопропускание и цвет остекления для вашего дома.
    — Заполнение камер аргоном для энергоэффективности.
    — Окна и двери в деревянных / алюминиевых рамах
    — Раздвижной портал HS для выхода на террасу.

    Природа становится частью вашего интерьера.
  • Кровля
    — Клееная стропильная система 90×250 мм.
    — Немецкая пароизоляция pro clima.
    — Натуральный древесный утеплитель и мягкая древесно-волокнистая плита
    — ПВХ мембрана

    Оптимальная защита от жары, холода и влаги.

  • Организация стройплощадки
    — Стройгородок для проживания рабочих.
    — Система видеонаблюдения за объектом.
    — Организация временного ограждения и подъездных путей.

    Безопасная и профессионально организованная работа на всех этапах строительства.

  • Проект Mini дом
    Проект Mini дом
    Проект Mini дом
    Проект Mini дом
    Проект Mini дом
    Проект Mini дом
    Проект Mini дом
    Проект Mini дом
    Проект Mini дом
    Проект Mini дом
    Проект Mini дом
    Проект Mini дом
    Проект Mini дом
    Проект Mini дом
    Проект Mini дом
    Проект Mini дом
    Проект Вайсенхоф
    Проект Вайсенхоф
    Минимальная цена
    37,2 млн.руб.
    Общая площадь
    295 м2
    Жилая площадь
    240 м2
    этажей
    2
    спален
    4
    санузлов
    3
    особенности
    Спортзал
    Плоская кровля
    Серийные дома
    Эксплуатируемая кровля
    комплектация

    Базовая комплектация

  • Разработка проектной документации
    — Схема размещения дома на участке;
    — План фундамента;
    — Планы этажей с расстановкой мебели;
    — Привязки сантехнических приборов;
    — План стропильной системы и план кровли;
    — Ведомость перекрытий;
    — Узлы монтажа безрамного остекления;
    — Аксонометрическая модель дома;
    — Визуализации;
    — Расчет статических нагрузок.
  • Стройплощадка
    — Стройгородок для проживания рабочих;
    — Видеонаблюдение;
    — Подъездные пути;
    — Организация временного забора.
  • Фундамент
    — Геодезические работы;
    — Техническая документация на фундамент;
    — Обустройство песчаной подушки под плиту с трамбовкой 400 мм;  
    — Выводы канализации Ostendorf;
    — Закладные под коммуникации;
    — Монолитная железобетонная плита 350 мм из бетона марки М350;
    — Арматура 12 мм, вязка и загиб по углам;
    — Виброусадка;
    — Гидроизоляция (гидростеклоизол);
    — Лабораторная экспертиза бетона спустя 28 дней после заливки.
  • Домокомплект
    — Фахверк со стойками 240 x 240 мм;
    — Покраска бруса австрийским маслом Adler;
    — Обработка огнебиозащитным составом стропильной системы, балок перекрытия и всех пиломатериалов;
    — Сборка на скрытую крепежную систему.
  • Внешние стены
    — Обрешетка;
    — Пароизоляция pro clima;
    — Каркас из сухой строганной доски;
    — Натуральный древесный утеплитель;
    — МДВП
  • Межэтажные перекрытия
    — Клееные балки перекрытия;
    — Огнестойкие шумопоглощающие плиты GreenBoard;
    — Клееные балки балконов (при их наличии в проекте).
  • Остекление
    — Панорамное остекление. Двухкамерные стеклопакеты на основе премиальной линейки стекол с магнетронным напылением LartaPro HP, металлопластиковая дистанционная рамка, заполнение камер аргоном;
    — Установка стеклопакетов в паз и монтаж капельников и отливов;
    — Открывные оконные системы и балконные двери в деревянных рамах;
    — Раздвижной портал HS Patio Life для выхода на террасу.
  • Кровля
    — Интеллектуальная пароизоляционная мембрана;
    — Клееная стропильная система 90х250 мм;
    — Древесный утеплитель;
    — Тепло- и звукоизоляционная МДВП-плита;
    — Плита OSB 18 мм;
    — ПВХ-мембрана Sikaplan 2 мм.  
  • Финишная отделка фасадов в соответствии с проектом
    — Фиброцементные панели, планкен, фальц, керамогранит, силиконовая паропроницаемая штукатурка.  
  • Другие работы
    — Временные входные двери;
    — Временная лестница (если дом имеет более одного этажа);
    — Отбойник дождевой воды.
  • Проект Вайсенхоф
    Проект Вайсенхоф
    Проект Вайсенхоф
    Проект Вайсенхоф
    Проект Вайсенхоф
    Проект Вайсенхоф
    Проект Вайсенхоф
    make-sure-about-company-img
    этапы сотрудничества
    Изображение дома
    1. 1.Инженерно-геологическое исследование участка
      Мы детально изучаем геологическую структуру и инженерные характеристики земельного участка, что позволяет оценить грунтовые условия, геологические особенности, а также определить необходимые меры для обеспечения устойчивости строительных конструкций. Результаты данного этапа важны для оптимального проектирования и строительства здания.
    2. 2.Согласование графика платежей
      Этап, на котором определяются условия и сроки оплаты за строительные услуги. В ходе этого процесса разрабатывается график, который устанавливает временные рамки и порядок финансовых обязательств заказчика по мере выполнения различных этапов строительства. Это важный шаг, обеспечивающий согласование условий оплаты.
    3. 3.Подписание договора
      Ключевой этап, на котором мы с клиентом официально закрепляем условия сотрудничества. Подписание договора обеспечивает четкость и прозрачность в ходе строительства, защищает интересы обеих сторон и служит основой для успешной реализации проекта.
    4. 4.Строительство
      Реализация проекта, на которой воплощаются все заранее разработанные планы и идеи. Специализированные бригады и профессионалы воплощают в жизнь концепцию дома, следуя технологическим процессам и соблюдая высокие стандарты качества. Строительный этап завершается, когда дом готов к использованию, и клиент может наслаждаться результатом.
    5. 5.Через 5-6 месяцев дом готов в комплектации тёплый контур
      Через 5-6 месяцев после начала строительства, дом полностью готов в комплектации тёплого контура, что означает завершение всех основных строительных работ и подготовку дома для последующей отделки.
    Технологии
    Утепление древесным волокном
    Технология утепления древесным волокном включает использование натурального материала, полученного из древесины. Этот материал применяется для создания теплоизоляционного слоя в стенах и крыше дома. Преимущества включают экологичность, хорошую теплоизоляцию, естественную влагоотдачу и дышащие свойства, что способствует сохранению комфортного микроклимата в помещении.
    Утепление древесным волокном
    Использование энергоэффективных стеклопакетов
    Технология использования энергоэффективного остекления включает применение особого вида стеклопакетов, которые спроектированы для минимизации теплопотерь и максимизации сохранения тепла в помещении. Обычно мы используем двухкамерные стеклопакеты, камера которых, заполнена инертным газом, что обеспечивает отличную теплоизоляцию. Также они имеют специальное низкоэмиссионное покрытие, отражающая УФ-лучи — такая технология способствует повышению энергоэффективности помещения и уменьшению затрат на отопление и  кондиционирование.
    Использование энергоэффективных стеклопакетов
    Покраска бруса натуральными маслами
    Мы обрабатываем клееный брус с использованием масел Adler или Osmo. Благодаря тщательной и равномерной обработке, включая труднодоступные участки, брус надежно защищен от внешних воздействий, таких как влага, УФ-излучение и другие факторы. Это обеспечивает его долговечность и сохранение внешнего вида на долгие годы.
    Покраска бруса натуральными маслами
    Покраска бруса натуральными маслами
    1 /
    архитектурные кейсы
    Ландшафтный дизайнер
    Евгений Липатов
    На одной из эксплуатируемых кровель мы оформили сад и зеленую зону с системой автополива. Вторая эксплуатируемая кровля существует независимо от первой. Одна из них может стать игровой зоной, а на другой можно расслабиться и наслаждаться садом.
    Прораб
    Андрей Кислицин
    Панорамное остекление в фахверковом доме "Мэдисон" занимает почти 90% от всего здания. Это позволяет стереть все границы с окружающей природой и погрузить жильцов в уютную и незабываемую атмосферу.
    Дизайнер
    Яна Кислякова
    Уникальный островной камин с панорамной топкой на зимней террасе — идеальное решение для создания уюта в холодное время. Камин, отделанный ониксом и эффектно подсвеченный, становится не только функциональным элементом, но и стильным акцентом. Панорамное раздвижное остекление на террасе обеспечивает оптимальное использование пространства.
    Прораб
    Андрей Кислицин
    Благодаря панорамному остеклению, которое занимает около 40% от всего здания, и выпадающему эркеру с большим фигурным стеклопакетом, мы визуально увеличили пространство всего дома и сделали его уникальным. Современные архитектурные решения и формы фахверка сделали его дизайн завершенным и сбалансированным.
    Главный инженер
    Андрей Сидоров
    Создавая "Дольф", мы хотели максимально сохранить единство с природой. И добились этого с помощью полностью стеклянного фасада и стеклянных балконов. Терраса установлена под большим свесом, а зона барбекю с обогревательными фонарями обустроена для комфортного отдыха всей семьи.  
    Дизайнер
    Яна Кислякова
    Уникальная и масштабная усадьба с современной архитектурой и отдельной wellness-зоной. Основной особенностью этого проекта является наличие аромасауны, хаммама и парной с отдельной топочной. В лаундж-зоне установлены джакузи и подвесной камин. Строительство происходило на участке, где жили клиенты.
    Архитектор
    Светлана Титова
    Этот архитектурный ансамбль включает разнообразные сооружения: гараж, просторная веранда с раздвижными стеклянными ограждениями, патио и открытый уличный бассейн, который выступает в роли центрального акцента. Важной особенностью комплекса является наличие частного причала для яхт.
    Инженер
    Андрей Сидоров
    "Эдинген" - это стильный фахверк для любителей банных процедур с полностью стеклянными стенами. Инновационная печь EasySteam позволяет максимально рационально использовать тепловую энергию и разогревать камни до 550-650 градусов.
    /

    свяжитесь с нами

    мы ответим на ваши вопросы и организуем встречу

    Менеджеры
    Менеджеры

    Алексей и Наталья

    менеджеры по продажам

    0/1000
    принимаю условия обработки персональных данных
    даю согласие на получение рекламных материалов
    +7 (499) 434-57-77

    Офис продаж

    МО. Барвиха, Подушкино 68А

    Связаться по e-mail

    Юр. данные: ООО "Чуркиндом" 119285, город Москва, Минская ул, д. 1г к. 2, этаж 2 помещ. II ком. 13 офис 106 ИНН/КПП 9729312117/772901001

    Запланировать просмотр

    Мы с радостью проведем Вам экскурсию, и расскажем обо всех этапах строительства на наглядном примере.

    принимаю условия обработкиперсональных данных
    даю согласие на получение рекламных материалов
    +7 (499) 434-57-77

    Заказать обратный звонок

    принимаю условия обработкиперсональных данных
    даю согласие на получение рекламных материалов
    +7 (499) 434-57-77

    Заказать обратный звонок

    Мы с радостью проведем Вам экскурсию, и расскажем обо всех этапах строительства на наглядном примере.

    принимаю условия обработки персональных данных
    даю согласие на получение рекламных материалов
    +7 (499) 434-57-77
    логотип
    Подбираем лучшие ракурсы...
    Загружаем планы помещений...
    Погружаемся в детали...
    Мы используем cookie, чтобы улучшать работу сайта.